Casa Horizonte
Casa Horizonte es una residencia costera que plantea una reflexión sobre cómo pertenecer al paisaje sin imitarlo ni competir con él. El proyecto asume su condición de objeto arquitectónico y establece un diálogo sutil con el horizonte, donde la experiencia del usuario se construye de manera gradual a través de recorridos que alternan compresión y expansión, luz y sombra, interior y exterior.
Ubicación: Puerto Cayo – Ecuador
Año: 2023
Autor: JGStudio Arquitectura
Fotografías: JAG Studio

Casa Horizonte comienza con una pregunta simple: ¿cómo puede el proyecto pertenecer al paisaje sin imitarlo ni competir con él?...
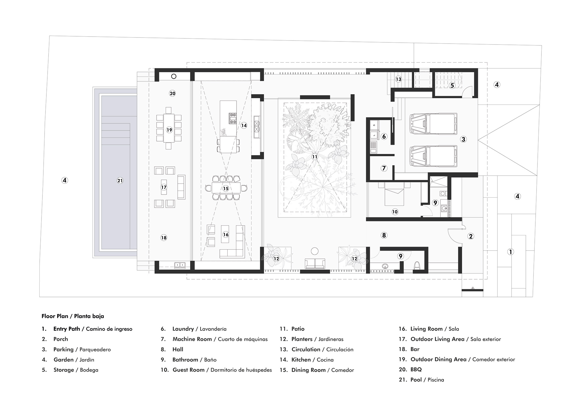
La residencia no intenta desaparecer en el sitio. Asume su condición de objeto ajeno al paisaje natural y establece un diálogo silencioso con el horizonte. La arquitectura se define por la gravedad y por el peso de la materia. El habitante no llega al océano de inmediato. El mar se revela gradualmente a medida que el usuario recorre el lugar. Los espacios se someten a compresión y expansión, sombra y luz, interior y exterior.
Los volúmenes pesados se convierten en el principal lenguaje arquitectónico. La casa está construida casi en su totalidad en hormigón visto, no tratado como una superficie lisa, sino que sus paredes y techos son rugosos como un registro de su propia ejecución. Las tablas de encofrado de madera dejan su veta, juntas e imperfecciones impresas en muros, techos y pisos. Estas marcas no se ocultan. Son el proyecto mismo. La arquitectura, por tanto, no solo se diseña, se construye artesanalmente.
El proceso constructivo involucró a carpinteros y albañiles trabajando mediante un ensamblaje manual cuidadoso y repetitivo. Cada colocación de tabla y cada alineación determinó la apariencia final del edificio. La textura no es decorativa. Es evidencia del trabajo humano. La casa revela cómo fue construida y reconoce las manos que la moldearon.
En un entorno costero donde los materiales se transforman constantemente por la humedad, la sal y el viento, la permanencia no se persigue como perfección, sino como resistencia. Se permite que el hormigón envejezca, se manche y cambie con el tiempo. El desgaste se convierte en parte de la arquitectura, no en su deterioro.
Casa Horizonte rechaza la imagen del objeto moderno prístino. Propone una arquitectura silenciosa y táctil, pesada pero serena, simple pero precisa. El horizonte se convierte en el único ornamento, y habitar se vuelve una conciencia gradual de la luz, el aire y el tiempo.
El proyecto entiende finalmente la arquitectura no como un objeto aislado, sino como una atmósfera construida en la que material, oficio y paisaje coexisten sin jerarquías.















